「新房推荐」 绿城市北地王项目价格曝光 绿城市北双子规划速看
扫描到手机,新闻随时看
扫一扫,用手机看文章
更加方便分享给朋友
10月,青岛多个热门地段爆款新盘揭幕,楼盘价格陆续释放。绿城市北双子价格如何?是否值得关注?
绿城和锦诚园
绿城市北“地王”项目——绿城和锦诚园被曝均价28000元/平米左右,毛坯交付。
编辑
搜图
项目位于市北区开平路45号,拿地楼板价17000元/平米。地块面积不大,总建面48738.2平米(商品住宅32906.9平米,商服4873.8平米,划拨公租房建面10957.5平米)。
从规划看,项目共4栋住宅楼,其中1栋公租房(1#),3栋商品住宅(2#-4#),主力户型为105平米套三双卫、118平米套二可升级为套三、126平米套三可升级套四户型。配套商业、室内健身、养老等服务设施,打造高端改善系产品。
编辑
搜图
项目距地铁1号线青岛中心医院站直线距离约600米,近邻12万方印象城(在建中)商业,距青岛市中心医院约400米,预计10月首开(看预售证下证时间),首开价格会便宜一些。
户型赏析:
编辑
搜图
该户型建面105平,套三双厅双卫,功能性比较强。三南向开间,客厅连通次卧的开敞大阳台,主卧带独立卫生间和飘窗,保证私密性。整个空间虽然为105平偏刚需面积段,但是保证了套三及双卫功能性格局,比较紧凑。
编辑
搜图
该户型建面118平,5.2米大横厅设计,非常阔绰大气。双南卧带飘窗,北向可改造做客卧或书房。厨房、餐厅、客厅南北贯通一体,彰显开阔感。餐厅空间比较方正可容纳六座位,比较舒适。
编辑
搜图
该户型建面126平,为套三可变套四户型。三阳台,客厅5.3米大面宽,主卧带独立卫生间和阳台,次卧带南向阳台保证晾晒功能。
待售住宅绿城和锦诚园咨询致电价格待定市北-大沙路
作为绿城市北双子的另一名成员,绿城和锦玉园预计均价31000元/平米,带装修交付。
编辑
搜图
项目位于市北区长沙路50号,属于新都心板块,坐享新都心商圈的配套。地铁3号线、地铁8号线双地铁加持。
编辑
搜图
项目共规划3栋住宅楼,总高28-29层,总占地面积15715平米 ,总建面5万平米,主力户型为109平米套三双卫和120平米套三双卫户型。
户型赏析:
编辑
搜图
109平米三室两厅两卫户型,户型方正,南北通透,三阳台设计,双南卧南厅带阳台,主卧带独立卫生间保证私密性,北向书房。
编辑
搜图
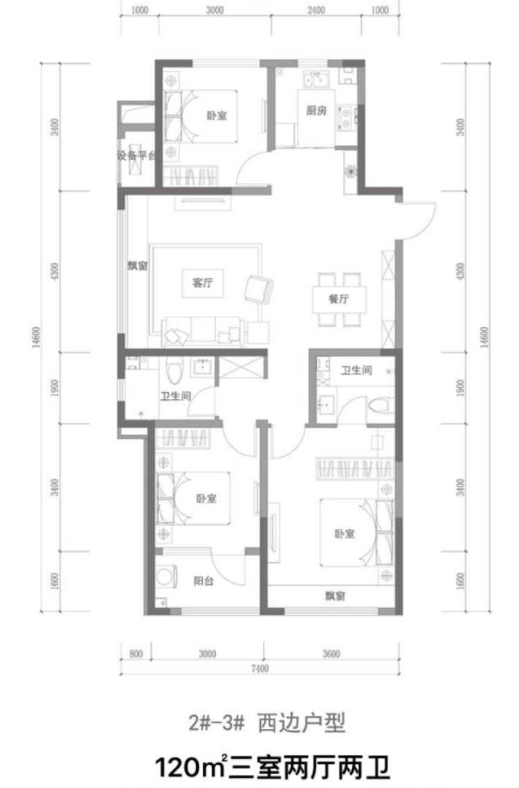
此户型为120平米东边户,东向客厅,双南卧,主卧面积达18平米带飘窗和独立卫生间,南向次卧带阳台,北向次卧面积近10平米,空间阔绰。
编辑
搜图
此户型为120平米西边户,西向客厅带飘窗,双南卧,主卧面积达18平米带飘窗和独立卫生间,南向次卧带阳台,北向次卧面积近10平米,空间阔绰。该户型与上边提到的东边户格局相同,空间大小一致。
待售住宅绿城和锦玉园咨询致电价格待定市北-合肥路佳世客
编辑
搜图
折扣保利和光尘樾6400元/平在售住宅建面89-119㎡/胶州-北关惠96折咨询致电折扣枫悦名邦8100元/平在售住宅建面87-128㎡/胶州-中云惠95折,成交带苏泊尔油烟机咨询致电
折扣中海林溪世家8200元/平在售住宅建面89-142㎡/胶州-少海惠93折咨询致电折扣海悦湾9500元/平在售住宅建面115-272㎡/胶州-少海惠9折,成交带家电咨询致电
特价房灵山湾壹号19000元/平在售住宅建面108-177㎡/黄岛-东方影都惠5套特价房,带车位咨询致电折扣融创·维多利亚湾9588元/平在售住宅建面116-161㎡/黄岛-黄岛港惠92折咨询致电
特价房瑞海澜山15000元/平在售住宅建面66-178㎡/黄岛-东方影都惠5套特价房咨询致电特价房凯景·领盛豪庭13000元/平在售住宅建面88-118㎡/黄岛-辛安惠6套特价房咨询致电
特价房天一仁和宸璟都会12000元/平在售住宅建面85-120㎡/城阳-上马惠5套特价房咨询致电折扣创智中粮锦云13000元/平在售住宅建面112-143㎡/即墨-即墨创智新区惠折扣咨询致电
折扣仙山花园16500元/平在售住宅建面88-117㎡/城阳-流亭惠全部房源95折,成交砸金蛋带家电咨询致电折扣大都汇玺元23500元/平在售住宅建面54-116㎡/市北-水清沟惠折扣咨询致电
折扣中瑞鼎峰·伴山府20000元/平在售住宅建面143㎡/城阳-夏庄惠99折咨询致电
贝壳新房
电话咨询
在线咨询
免责声明:
1、本专题内全部楼盘图片均为效果图,具体以楼盘实际情况为准。
2、本专题楼盘价格及优惠信息采集于2021年10月15日 ,实际信息可能有变动,请以销售现场实际信息为准。
3、专题内楼盘优惠信息已与售楼处核实,并签订书面协议,当下优惠即为文中所列,如有变动,以售楼处当日最终销售实际为准。
4、因时间、市场、政策等发生变化,以上信息仅供参考,不作交易依据使用,文中所涉及装修状况、标准以合同为准。
5、本专题内楼盘面积均为建筑面积。
贝壳找房青岛站感谢您的观看
声明:本文由入驻焦点开放平台的作者撰写,除焦点官方账号外,观点仅代表作者本人,不代表焦点立场。

